采购谈判公告——北大荒完达山乳业股份有限公司营养食品事业部中央大街旗舰店手工酸奶改造采购项目

采购谈判公告

一、项目基本情况

1.项目编号:WDSRCXXGYL202507-01

2.项目名称:北大荒完达山乳业股份有限公司营养食品事业部中央大街旗舰店手工酸奶改造采购项目

3.采购方式:竞争谈判

4.预算金额:总预算人民币26000.00元,预算包含制作、运输、安装、税费等全部费用,我方不再另行支付任何其它费用。

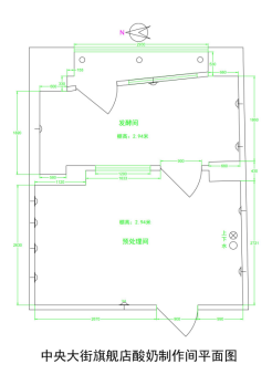
5.采购项目需求:

本次项目服务包括以下:


image.png 

1)三个隔断(含3个门和两个窗户,使用防火洁净板)。

2)给水和排水管路连接(约10米,门口处管路埋到地面下,排水要防反味)。

3)拆除桌椅、灯箱牌、展示柜及部分扣板(上下水安装)。

4)电路布置。

5)拆除部分扣板的恢复。

6)墙面刷涂料。

具体布置见平面图。

6.质保期:12个月

7.交货期及交货地点:完达山乳此新鲜中央大街旗舰店

8.重要声明

1)本项目不接受联合体报价,选定供应商不得将业务进行转包或二次分包。

2)如提报金额超出我方预算控制价,将视为无效文件处理。

3)提供材料必须真实如涉嫌造假,一经核实,立即取消合作资格,造假单位列为黑名单服务商,永远不得参加北大荒完达山乳业股份有限公司所有项目。

4)涉及专利、版权争议及法律问题由提报方负责。

二、申请人的资格要求

具有有效的营业执照,经营范围符合采购范围

三、获取竞争性谈判文件

1.获取比价文件时间:2025071614:00时至2025071917:00(北京时间)。

2.地  点:北大荒完达山乳业股份有限公司营养食品事业部。

3.方  式:电话联系获取比价文件,联系电话:13503616922

四、响应文件提交

1.提交谈判响应文件截止时间:2025072017:00时(北京时间)。

2.提交谈判响应文件方式:线上发送响应文件形式,电子版响应文件提交邮箱为:17645110231@163.com,在谈判响应文件截止时间后递交的响应文件,将不予接收。

3.谈判时间:202507219:00时(北京时间)。

4.谈判地点:线上谈判,供应商无需到达现场。

五、公告期限

自本公告发布之日起 3 个工作日。

七、凡对本次采购提出询问,请按以下方式联系。

采购人名称:北大荒完达山乳业股份有限公司营养食品事业部

地址:黑龙江省哈尔滨市香坊区三辅街45

人:轩诗海

联系方式:13503616922

 

北大荒完达山乳业股份有限公司

20250716